Tuile en terre cuite galbée noire avec emboîtement latéral simple avec recouvrement et emboîtement de tête simple avec recouvrement - Koramic OVH Klassiek Noir satiné
  • Description Noir vif brillant et tuile fortement ondulée, c'est ce que vous obtenez lorsque vous choisissez l'OVH Klassiek Noir satiné.
  • Type de tuile Tuile galbée à emboîtements
  • Type d'emboîtement Emboîtement latéral simple avec recouvrement et emboîtement de tête simple avec recouvrement
  • Pente minimale avec sous-toiture Fleece, Fleece Plus ou Fleece Plus FR: 25°
    Fleece Premium: 15°

Pièces/m²
Pièces/m²
± 15,90
Largeur de recouvrement nominale
Largeur de recouvrement nominale
Lattage
Lattage
Poids par pièce
Poids par pièce
± 2,46 kg
Poids par m²
Poids par m²
39,1 kg
Traitement de surface
Traitement de surface
Engobé
Code couleur
Code couleur
746

Pose
Pose
Joints droits

Avec tous les matériaux de toiture plats, il faut faire attention à la planéité de la structure du toit. Toutes les caractéristiques du produit sont reprises dans la documentation dans la section téléchargements.

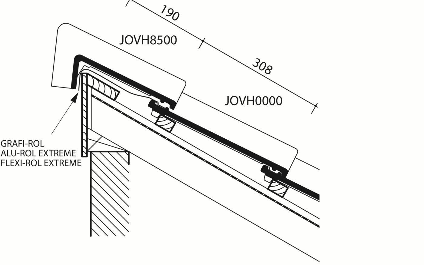
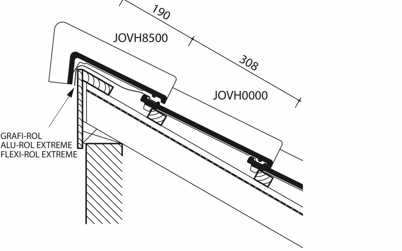
Plans de pose et dimensions

Adresses de références près de chez vous

Cette tuile en terre cuite semble convenir à votre projet de construction?
Consultez alors notre outil Maisons Inspirantes et découvrez de nombreuses maisons de référence dans votre région qui ont été construites avec cette tuile.

Projets de référence inspirants

Découvrez tout ce qui est possible avec cette tuile en terre cuite.
Laissez-vous inspirer par les séries de photos que vous pouvez retrouver ci-dessous.

Outils

Fixation des tuiles

Ce module calcule la fixation nécessaire sur base de quatre facteurs d’influence : la masse de la couverture, la pente, la localisation du bâtiment et la hauteur de la faîtière.

Calculatrice de récupération d’eau

Calculez combien d’eau vous économisez en récupérant l’eau de pluie.

Trouvez des couvreurs près de chez vous

Vous cherchez un couvreur expérimenté près de chez vous? Vous trouverez sur la carte de très nombreux couvreurs expérimentés dans la pose des tuiles Koramic.

Distributeurs de tuiles

Vous cherchez des distributeurs de tuiles en terre cuite Koramic? Sachez que la plupart des négociants en matériaux de construction proposent la gamme Koramic. 

Renovated showroom Londerzeel

Admirez. Rêvez. Choisissez.

Ensemble, nous concrétiserons littéralement vos rêves dans nos showrooms.

  • Passez nous voir et laissez-vous inspirer par nos solutions innovantes pour une toiture élégante. Examinez-les, saisissez-les et touchez de vos doigts votre future toiture.
  • Nos conseillers en showroom vous prodigueront de larges conseils experts. 
  • Emportez vos échantillons préférés.

Vous pouvez nous trouver:

Londerzeel 

A12 - Koning Leopoldlaan 1
2870 Breendonk

Courtrai 

Kapel ter Bede 88
8500 Courtrai

Produits

Notre gamme de matériaux de construction et des solutions renferme assurément le produit approprié pour votre réalisation. Utilisez un de nos moteurs de recherche afin de trouver votre produit de construction préféré.

Téléchargements

A la recherche d'une brochure spécifique, un fiche technique ou des conseils concernant notre produits?

Centre de documentation

Showrooms

Visitez un de nos showrooms, découvrez nos matériaux de construction et emmenez un échantillon gratuit de votre produit préféré. Ainsi, participez à notre tombola et tentez de remporter un bon de réduction de 600 €.

Offres d'emploi

Vous aussi, vous voulez devenir un Wienerbergien ? Découvrez ici nos offres d’emploi et façonnez votre carrière.