Rénovation de façade avec tuiles en terre cuite: détails techniques

Un revêtement de façade réalisé avec des tuiles en terre cuite associe les avantages d’un revêtement de façade léger à la technique de pose connue des tuiles en terre cuite, soit un choix économique. Toutes les tuiles en terre cuite de wienerberger peuvent être utilisées comme revêtement de façade. Vous trouverez ci-dessous des détails techniques.

1. Fondations
    1.1. Généralités
        1.1.1. Pas de travaux de fondation

2. Jonctions avec la toiture en pente
    2.1. Généralités
        2.1.1. Corniche - débord suffisant
        2.1.2. Corniche - débord insuffisant sans adaptations à l'intérieur
        2.1.3. Corniche - débord insuffisant avec adaptations à l'intérieur
        2.1.4. Côté - débord suffisant
        2.1.5. Côté - débord insuffisant
    2.2. Mur creux avec conservation de la brique de parement
        2.2.1. Corniche - débord suffisant
        2.2.2. Côté - débord suffisant

3. Jonction avec la toiture plate
    3.1. Généralités
        3.1.1. Rive de toiture plate 
        3.1.2. Transition toiture plate - façade

4. Jonction avec le châssis de fenêtre
    4.1. Généralités
        4.1.1. Nouveau, raccord supérieur
        4.1.2. Nouveau, raccord inférieur
        4.1.3. Nouveau, raccord latéral

    4.2. Mur massif
        4.2.1. Conservé, raccord supérieur
        4.2.2. Conservé, raccord inférieur
        4.2.3. Conservé, raccord latéral
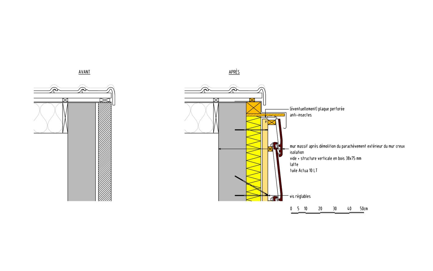
    4.3. Mur massif, après démolition du parement du mur creux
        4.3.1. Conservé, raccord supérieur
        4.3.2. Conservé, raccord inférieur
        4.3.3. Conservé, raccord latéral
    4.4. Mur creux
        4.4.1. Conservé, raccord supérieur
        4.4.2. Conservé, raccord inférieur
        4.4.3. Conservé, raccord latéral
    
5. Jonction avec la porte
    5.1. Généralités
        5.1.1. Nouveau, raccord inférieur
    5.2. Mur massif
        5.2.1. Conservé, raccord inférieur
     5.3. Mur massif, après démolition du parement du mur creux
        5.3.1. Conservé, raccord inférieur
     5.4. Mur creux
        5.4.1. Conservé, raccord inférieur

6. Jonction à hauteur d'angles
    6.1. Généralités
        6.1.1. Angle intérieur
        6.1.2. Angle extérieur

1. Fondation

1.1. Généralités

1.1.1. Pas de travaux de fondation

Le détail a été dessiné pour un mur massif. L'emballage de l'isolation au pied dépendra du type de matériau isolant utilisé. Par sécurité, on appliquera une membrane d'étanchéité.

Retourner en haut.

2. Jonctions avec la toiture en pente

2.1. Généralités

2.1.1. Corniche - débord suffisant

Le détail a été dessiné pour un mur creux existant avec démolition de la paroi extérieure.

Retourner en haut.

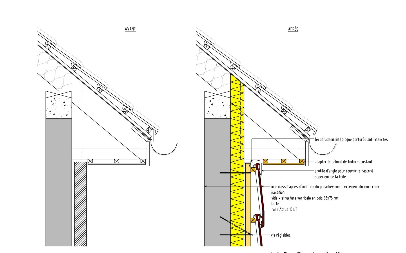
2.1.2. Corniche - débord insuffisant sans adaptations à l’intérieur

Le détail a été dessiné pour un mur creux existant avec démolition de la paroi extérieure. Comme principe, le revêtement de la corniche a été reproduit. Le détail du parachèvement dépendra du matériau choisi. La (les) nouvelle(s) contre-latte(s) a (ont) été dessinée(s) systématiquement et on a utilisé une planche de corniche en forme de coin. Il s'agit d'une des possibilités. Travailler avec une planche de corniche constitue une recommandation de la NIT 175, mais ce sera difficilement réalisable en rénovation. On pourra aussi travailler avec une sous-latte ventilée.

Retourner en haut.

2.1.3. Corniche - débord insuffisant avec adaptations à l’intérieur

Le détail a été dessiné pour un mur creux existant avec démolition de la paroi extérieure. Comme principe, le revêtement de la corniche a été reproduit. Le détail du parachèvement dépendra du matériau choisi. La (les) nouvelle(s) contre-latte(s) a (ont) été dessinée(s) systématiquement et on a utilisé une planche de corniche en forme de coin. Il s'agit d'une des possibilités. Travailler avec une planche de corniche constitue une recommandation de la NIT 175, mais ce sera difficilement réalisable en rénovation. On pourra aussi travailler avec une sous-latte ventilée.

Retourner en haut.

2.1.4. Côté - débord suffisant

Le détail a été dessiné pour un mur creux existant avec démolition de la paroi extérieure.

Retourner en haut.

2.1.5. Côté - débord insuffisant

Le détail a été dessiné pour un mur creux existant avec démolition de la paroi extérieure.

En cas de démolition du parement en brique existant, il faudra examiner le support de la tuile de rive. Si nécessaire, il faudra le retirer temporairement et le replacer ultérieurement.

La fixation du chevron dépendra de l'état de la maçonnerie. Si nécessaire, il faudra intégrer des cales ou procéder à l'ancrage plus bas.

En cas de mur massif, l'isolation ne sera pas posée sous la tuile de rive et la bavette de zinc présentera uniquement un rebord vertical qui s'appliquera derrière la tuile de rive. Dans ce cas également, la bavette de zinc sera soutenue par un multiplex WBP.

Retourner en haut.

2.2. Mur creux avec conservation de la brique de parement

2.2.1. Corniche - débord suffisant

Une étude récente de la KU Leuven concernant la nécessité ou non de remplir le creux (< 50 mm) en cas de système d’isolation par l’extérieur a montré que le creux pourra rester non-isolé à condition que toutes les ouvertures soient obturées afin d’éviter des flux d’air dans ce creux.

Retourner en haut.

2.2.2. Côté - débord suffisant

Une étude récente de la KU Leuven concernant la nécessité ou non de remplir le creux (< 50 mm) en cas de système d’isolation par l’extérieur a montré que le creux pourra rester non-isolé à condition que toutes les ouvertures soient obturées afin d’éviter des flux d’air dans ce creux.

Retourner en haut.

3. Jonction avec la toiture plate

3.1. Généralités

3.1.1. Rive de toiture plate

Le détail a été dessiné pour un mur creux existant avec démolition de la paroi extérieure. Si l'état du multiplex existant le permet, le nouveau panneau de multiplex pourra être posé sur l'ancien.

Retourner en haut.

3.1.2. Transition toiture plate - façade

Le détail a été dessiné pour un mur creux existant avec démolition de la paroi extérieure. Par sécurité, on placera une membrane d'étanchéité.

Retourner en haut.

4. Jonction avec le châssis de fenêtre

4.1. Généralités

4.1.1. Nouveau, raccord supérieur

Le détail a été dessiné pour un mur creux existant avec démolition de la paroi extérieure. La membrane d'étanchéité aura surtout son utilité pendant la phase de construction et servira de sécurité supplémentaire lors de la phase finale. Pour appliquer ce principe en cas de mur massif ou d'un mur creux avec conservation de la paroi extérieure, la battée devra être rabotée pour obtenir une situation similaire à celle du croquis. D'un point de vue thermique, le châssis sera idéalement positionné presque au centre de l'isolation nouvellement posée. Tentez en tout cas d'obtenir un chevauchement maximal de l'isolation sur le dormant du châssis. Sur les portes a été prévu un cadre métallique pour réaliser la jonction avec le seuil. Ce principe pourra aussi être appliqué pour les châssis de fenêtre.

Retourner en haut.

4.1.2. Nouveau, raccord inférieur

Le détail a été dessiné pour un mur creux existant avec démolition de la paroi extérieure. Sur les portes a été prévu un cadre métallique pour réaliser la jonction avec le seuil. Ce principe pourra aussi être appliqué pour les châssis de fenêtre moyennant quelques adaptations. En cas de tuile complète sous le châssis, le petit bout de tuile sous le seuil sera fixé de préférence par collage. En cas de tuile sciée sous le châssis, on percera un trou dans la tuile sciée à l'aide d'une mèche à pierre d'un diamètre de 6 mm. La tuile sera ensuite fixée avec une vis en inox avec anneau EPDM (4,5 * 60 mm) et un crochet de tuile latéral.

Retourner en haut.

4.1.3. Nouveau, raccord latéral

Le détail a été dessiné pour un mur creux existant avec démolition de la paroi extérieure. Pour appliquer ce principe en cas de mur massif ou d'un mur creux avec conservation de la paroi extérieure, la battée devra être rabotée pour obtenir une situation similaire à celle du croquis. D'un point de vue thermique, le châssis sera idéalement positionné presque au centre de l'isolation nouvellement posée. Tentez en tout cas d'obtenir un chevauchement maximal de l'isolation sur le dormant du châssis. Sur les portes a été prévu un cadre métallique pour réaliser la jonction avec le seuil. Ce principe pourra aussi être appliqué pour les châssis de fenêtre.

Retourner en haut.

4.2. Mur massif

4.2.1. Conservé, raccord supérieur

Pendant les travaux de démolition, protégez suffisamment les menuiseries à conserver.

La membrane d'étanchéité aura surtout son utilité pendant la phase de construction et servira de sécurité supplémentaire lors de la phase finale.

La situation a été dessinée avec une tuile sciée au-dessus du châssis. Pour le principe avec une tuile complète, voir détail 3411.

Sur les portes a été prévu un cadre métallique pour réaliser la jonction avec le seuil. Ce principe pourra aussi être appliqué pour les châssis de fenêtre.

Retourner en haut.

4.2.2. Conservé, raccord inférieur

Pendant les travaux de démolition, protégez suffisamment les menuiseries à conserver.

La situation a été dessinée avec une tuile sciée en-dessous du châssis. Pour le principe avec une tuile complète, voir détail 3412.

Sur les portes a été prévu un cadre métallique pour réaliser la jonction avec le seuil. Ce principe pourra aussi être appliqué pour les châssis de fenêtre moyennant quelques adaptations.

Le châssis existant ne repose pas sur le seuil. Conformément aux recommandations de la STS 52 art. 6.2.3.1 (2005) et de la NIT 188 (1993). Si le châssis repose tout de même sur le seuil existant, il faudra prendre des mesures pour ne pas mettre en péril la stabilité du châssis.

Retourner en haut.

4.2.3. Conservé, raccord latéral

Pendant les travaux de démolition, protégez suffisamment les menuiseries à conserver. Sur les portes a été prévu un cadre métallique pour réaliser la jonction avec le seuil. Ce principe pourra aussi être appliqué pour les châssis de fenêtre.

Retourner en haut.

4.3. Mur massif, après démolition du parement du mur creux

4.3.1. Conservé, raccord supérieur

Pendant les travaux de démolition, protégez suffisamment les menuiseries à conserver. La membrane d'étanchéité aura surtout son utilité pendant la phase de construction et servira de sécurité supplémentaire lors de la phase finale. La situation a été dessinée avec une tuile sciée au-dessus du châssis. Pour le principe avec une tuile complète, voir détail 3411. Sur les portes a été prévu un cadre métallique pour réaliser la jonction avec le seuil. Ce principe pourra aussi être appliqué pour les châssis de fenêtre.

Retourner en haut.

4.3.2. Conservé, raccord inférieur

Pendant les travaux de démolition, protégez suffisamment les menuiseries à conserver. La situation a été dessinée avec une tuile sciée en-dessous du châssis. Pour le principe avec une tuile complète, voir détail 3412. Sur les portes a été prévu un cadre métallique pour réaliser la jonction avec le seuil.

Ce principe pourra aussi être appliqué pour les châssis de fenêtre moyennant quelques adaptations. Le châssis existant ne repose pas sur le seuil. Conformément aux recommandations de la STS 52 art. 6.2.3.1 (2005) et de la NIT 188 (1993). Si le châssis repose tout de même sur le seuil existant, il faudra prendre des mesures pour ne pas mettre en péril la stabilité du châssis.

Retourner en haut.

4.3.3. Conservé, raccord latéral

Pendant les travaux de démolition, protégez suffisamment les menuiseries à conserver. Sur les portes a été prévu un cadre métallique pour réaliser la jonction avec le seuil. Ce principe pourra aussi être appliqué pour les châssis de fenêtre.

Retourner en haut.

4.4. Mur creux

4.4.1. Conservé, raccord supérieur

Pendant les travaux de démolition, protégez suffisamment les menuiseries à conserver. La membrane d’étanchéité aura surtout son utilité pendant la phase de construction et servira de sécurité supplémentaire lors de la phase finale. La situation a été dessinée avec une tuile sciée au-dessus du châssis. Pour le principe avec une tuile complète, voir détail 3411. En cas de plus grandes portées, il faudra vérifier la stabilité du linteau et, si nécessaire, placer un profilé en L ou une console avec des points d’appui intermédiaires. Sur les portes a été prévu un cadre métallique pour réaliser la jonction avec le seuil. Ce principe pourra aussi être appliqué pour les châssis de fenêtre. Une étude récente de la KU Leuven concernant la nécessité ou non de remplir le creux (< 50 mm) en cas de système d’isolation par l’extérieur a montré que le creux pourra rester non-isolé à condition que toutes les ouvertures soient obturées afin d’éviter des flux d’air dans ce creux.

Retourner en haut.

4.4.2. Conservé, raccord inférieur

Pendant les travaux de démolition, protégez suffisamment les menuiseries à conserver. Il propose une solution avec une tôle perforée. Cela offrira davantage de liberté pour le niveau de parachèvement inférieur du revêtement de façade. Naturellement, d’autres solutions sont également possibles: une plinthe en partie inférieure, laisser le seuil ou le remplacer par un seuil de même largeur et procéder au parachèvement avec un retour de façade vers le seuil.

Cette dernière solution sera la plus économique. Ce principe peut aussi être appliqué pour châssis coulissants et tous les châssis posés au niveau du sol. Une étude récente de la KU Leuven concernant la nécessité ou non de remplir le creux (< 50 mm) en cas de système d’isolation par l’extérieur a montré que le creux pourra rester non-isolé à condition que toutes les ouvertures soient obturées afin d’éviter des flux d’air dans ce creux.

Retourner en haut.

4.4.3. Conservé, raccord latéral

Pendant les travaux de démolition, protégez suffisamment les menuiseries à conserver. Sur les portes a été prévu un cadre métallique pour réaliser la jonction avec le seuil. Ce principe pourra aussi être appliqué pour les châssis de fenêtre. Une étude récente de la KU Leuven concernant la nécessité ou non de remplir le creux (< 50 mm) en cas de système d’isolation par l’extérieur a montré que le creux pourra rester non-isolé à condition que toutes les ouvertures soient obturées afin d’éviter des flux d’air dans ce creux.

Retourner en haut.

5. Jonction avec la porte

5.1. Généralités

5.1.1. Nouveau, raccord inférieur

Le détail a été dessiné pour un mur creux existant avec démolition de la paroi extérieure. Il propose une solution avec une tôle perforée. Cela offrira davantage de liberté pour le niveau de parachèvement inférieur du revêtement de façade. Naturellement, d'autres solutions sont également possibles: une plinthe en partie inférieure, laisser le seuil ou le remplacer par un seuil de même largeur et procéder au parachèvement avec un retour de façade vers le seuil. Cette dernière solution sera la plus économique. Voir détail du raccord latéral: D'un point de vue thermique, le châssis sera idéalement positionné presque au centre de l'isolation nouvellement posée. Tentez en tout cas d'obtenir un chevauchement maximal de l'isolation sur le dormant du châssis.

Ce principe peut aussi être appliqué pour châssis coulissants et tous les châssis posés au niveau du sol.

Retourner en haut.

5.2. Mur massif

5.2.1. Conservé, raccord inférieur

Pendant les travaux de démolition, protégez suffisamment les menuiseries à conserver. Il propose une solution avec une tôle perforée. Cela offrira davantage de liberté pour le niveau de parachèvement inférieur du revêtement de façade. Naturellement, d'autres solutions sont également possibles: une plinthe en partie inférieure, laisser le seuil ou le remplacer par un seuil de même largeur et procéder au parachèvement avec un retour de façade vers le seuil. Cette dernière solution sera la plus économique.

Ce principe peut aussi être appliqué pour châssis coulissants et tous les châssis posés au niveau du sol.

Retourner en haut.

5.3. Mur massif, après démolition du parement du mur creux

5.3.1. Conservé, raccord inférieur

Pendant les travaux de démolition, protégez suffisamment les menuiseries à conserver. Il propose une solution avec une tôle perforée. Cela offrira davantage de liberté pour le niveau de parachèvement inférieur du revêtement de façade. Naturellement, d'autres solutions sont également possibles: une plinthe en partie inférieure, laisser le seuil ou le remplacer par un seuil de même largeur et procéder au parachèvement avec un retour de façade vers le seuil. Cette dernière solution sera la plus économique.

Ce principe peut aussi être appliqué pour châssis coulissants et tous les châssis posés au niveau du sol.

Retourner en haut.

5.4. Mur creux

5.4.1. Conservé, raccord inférieur

Pendant les travaux de démolition, protégez suffisamment les menuiseries à conserver. Il propose une solution avec une tôle perforée. Cela offrira davantage de liberté pour le niveau de parachèvement inférieur du revêtement de façade. Naturellement, d’autres solutions sont également possibles: une plinthe en partie inférieure, laisser le seuil ou le remplacer par un seuil de même largeur et procéder au parachèvement avec un retour de façade vers le seuil.

Cette dernière solution sera la plus économique. Ce principe peut aussi être appliqué pour châssis coulissants et tous les châssis posés au niveau du sol. Une étude récente de la KU Leuven concernant la nécessité ou non de remplir le creux (< 50 mm) en cas de système d’isolation par l’extérieur a montré que le creux pourra rester non-isolé à condition que toutes les ouvertures soient obturées afin d’éviter des flux d’air dans ce creux.

Retourner en haut.

6. Jonction à hauteur d'angles

6.1. Généralités

6.1.1. Angle intérieur

Le détail a été dessiné pour un mur creux existant avec démolition de la paroi extérieure. Si des nez de suspension sont dans le chemin pour placer le profilé en zinc dans l'angle intérieur, ceux-ci devront être retirés par le placeur. Si, après avoir été sciée, une tuile ne peut plus être fixée au moyen d'un crochet de tuile latéral, il sera conseillé de visser deux fois cette tuile avec une vis en inox avec anneau EPDM (la longueur de la vis dépendra du type de tuile. Pour la tuile Actua, il s'agira de 60 mm.)

Retourner en haut.

6.1.2. Angle extérieur

Le détail a été dessiné pour un mur creux existant avec démolition de la paroi extérieure. Si vous choisissez une tuile pour laquelle il n'existe pas de pièce d'angle, vous pourrez utiliser une tuile de rive ou vous pourrez plier un profilé d'angle selon les souhaits du maître de l'ouvrage ou de l'architecte en concertation avec le couvreur.

Retourner en haut.

Encore une question ?

Vous n'avez pas trouvé une réponse à votre question ?
Envoyez-nous votre question.

Produits

Notre gamme de matériaux de construction et des solutions renferme assurément le produit approprié pour votre réalisation. Utilisez un de nos moteurs de recherche afin de trouver votre produit de construction préféré.

Téléchargements

A la recherche d'une brochure spécifique, un fiche technique ou des conseils concernant notre produits?

Centre de documentation

Showrooms

Visitez un de nos showrooms, découvrez nos matériaux de construction et emmenez un échantillon gratuit de votre produit préféré. Ainsi, participez à notre tombola et tentez de remporter un bon de réduction de 600 €.

Offres d'emploi

Vous aussi, vous voulez devenir un Wienerbergien ? Découvrez ici nos offres d’emploi et façonnez votre carrière.