Gevelrenovatie met kleidakpannen: technische details

Een gevelbekleding met kleidakpannen combineert de voordelen van een lichte gevelbekleding met de gekende plaatsingstechniek van kleidakpannen, een budgetvriendelijke keuze. Elke Koramic kleidakpan kan toegepast worden als gevelbekleding. Hier hebben we de technische details verzameld. 

1. Fundering
    1.1. Algemeen
        1.1.1. Geen funderingswerken

2. Hellende dakaansluiting
    2.1. Algemeen
        2.1.1. Goot – voldoende oversteek
        2.1.2. Goot – onvoldoende oversteek zonder binnenaanpassingen
        2.1.3. Goot – onvoldoende oversteek met binnenaanpassingen
        2.1.4. Zijdelings – voldoende oversteek
        2.1.5. Zijdelings – onvoldoende oversteek
    2.2. Spouwmuur met behoud gevelsteen
        2.2.1. Goot – voldoende oversteek
        2.2.2. Zijdelings - voldoende oversteek

3. Platte dakaansluiting
    3.1. Algemeen
        3.1.1. Platte dakrand
        3.1.2. Overgang plat dak – gevel

4. Raamaansluiting
    4.1. Algemeen
        4.1.1. Nieuw, bovenaansluiting
        4.1.2. Nieuw, onderaansluiting
        4.1.3. Nieuw, zijaansluiting

    4.2. Massieve muur
        4.2.1. Behoud, bovenaansluiting
        4.2.2. Behoud, onderaansluiting
        4.2.3. Behoud, zijaansluiting
    4.3. Massieve muur, na afbraak gevelafwerking spouwmuur
        4.3.1. Behoud, bovenaansluiting
        4.3.2. Behoud, onderaansluiting
        4.3.3. Behoud, zijaansluiting
    4.4. Spouwmuur
        4.4.1. Behoud, bovenaansluiting
        4.4.2. Behoud, onderaansluiting
        4.4.3. Behoud, zijaansluiting
    
5. Deuraansluiting
    5.1. Algemeen
        5.1.1. Nieuw, onderaansluiting
    5.2. Massieve muur
        5.2.1. Behoud, onderaansluiting
     5.3. Massieve muur, na afbraak gevelafwerking spouwmuur
        5.3.1. Behoud, onderaansluiting
     5.4. Spouwmuur
        5.4.1. Behoud, onderaansluiting

6. Hoekaansluiting
    6.1. Algemeen
        6.1.1. Binnenhoek
        6.1.2. Buitenhoek

1. Fundering

1.1. Algemeen

1.1.1. Geen funderingswerken

Het detail werd getekend voor een massieve muur. Het inpakken van de isolatie aan de voet, is afhankelijk van het type isolatiemateriaal dat gebruikt wordt. Veiligheidshalve wordt een waterkering geplaatst.

Terug naar boven.

2. Hellende dakaansluiting

2.1. Algemeen

2.1.1. Goot - voldoende oversteek

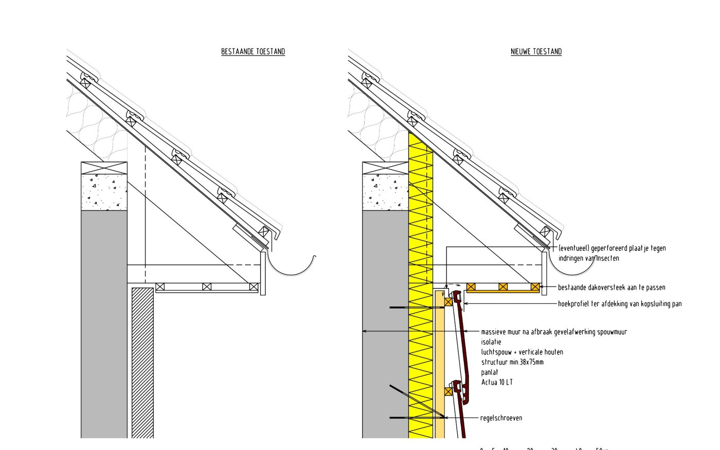
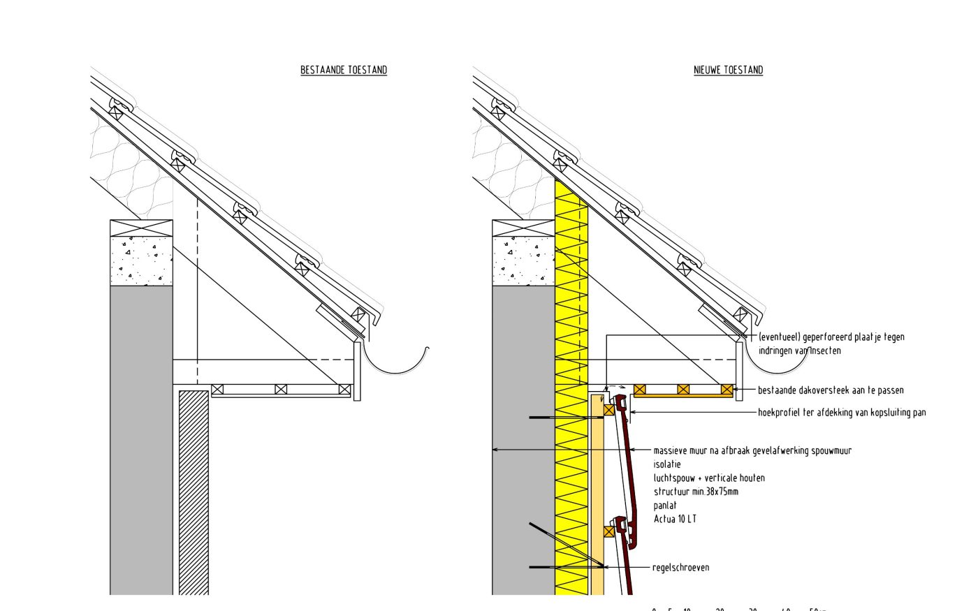
Het detail werd getekend voor een bestaande spouwmuur waarvan het buitenspouwblad wordt afgebroken.

Terug naar boven.

2.1.2. Goot - onvoldoende oversteek zonder binnenaanpassingen

Het detail werd getekend voor een bestaande spouwmuur waarvan het buitenspouwblad wordt afgebroken. De bekleding van de kroonlijst werd als principe weergegeven. De detaillering van de afwerking hangt af van het gekozen materiaal. De nieuwe tengellat(ten) werd(en) schematisch getekend en er werd gebruik gemaakt van een spievormige gootplank. Dit is één van de mogelijkheden. Het werken met een geïntegreerde gootplank is een aanbeveling uit TV175, maar is bij renovatie vaak moeilijker uitvoerbaar. Ook kan met een geventileerde onderlat gewerkt worden.

Terug naar boven.

2.1.3. Goot - onvoldoende oversteek met binnenaanpassingen

Het detail werd getekend voor een bestaande spouwmuur waarvan het buitenspouwblad wordt afgebroken. De bekleding van de kroonlijst werd als principe weergegeven. De detaillering van de afwerking hangt af van het gekozen materiaal. De nieuwe tengellat(ten) werd(en) schematisch getekend en er werd gebruik gemaakt van een spievormige gootplank. Dit is één van de mogelijkheden. Het werken met een geïntegreerde gootplank is een aanbeveling uit TV175, maar is bij renovatie vaak moeilijker uitvoerbaar. Ook kan met een geventileerde onderlat gewerkt worden.

Terug naar boven.

2.1.4. Zijdelings - voldoende oversteek

Het detail werd getekend voor een bestaande spouwmuur waarvan het buitenspouwblad wordt afgebroken.

Terug naar boven.

2.1.5. Zijdelings - onvoldoende oversteek

Het detail werd getekend voor een bestaande spouwmuur waarvan het buitenspouwblad wordt afgebroken.

Bij wegbreken van de bestaande gevelsteen moet de opvang van de gevelpan bekeken worden. Desnoods dient die tijdelijk te worden verwijderd om daarna te herplaatsen. 

De bevestiging van de keper is afhankelijk van de toestand van het metselwerk, desnoods dienen klossen ingewerkt of dient de verankering meer naar onder te gebeuren.

In het geval van een massieve muur komt de isolatie niet onder de gevelpan en zal de zinken slab enkel een verticale opstand hebben die achter de gevelpan grijpt. Ook in dit geval wordt de zinken slab ondersteunt door een WBP-multiplex.

Terug naar boven.

2.2. Spouwmuur met behoud gevelsteen

2.2.1. Goot - voldoende oversteek

Volgens recent onderzoek van KU Leuven betreffende het al dan niet noodzakelijk zijn van het navullen van de spouw (<50 mm) in geval van een buitenisolatiesysteem is gebleken dat de spouw ongeïsoleerd mag blijven op voorwaarde dat alle openingen gedicht werden zodat luchtstromingen in deze spouw vermeden worden.

Terug naar boven.

2.2.2. Zijdelings - voldoende oversteek

Volgens recent onderzoek van KU Leuven betreffende het al dan niet noodzakelijk zijn van het navullen van de spouw (<50 mm) in geval van een buitenisolatiesysteem is gebleken dat de spouw ongeïsoleerd mag blijven op voorwaarde dat alle openingen gedicht werden zodat luchtstromingen in deze spouw vermeden worden.

Terug naar boven.

3. Platte dakaansluiting

3.1. Algemeen

3.1.1. Platte dakrand

Het detail werd getekend voor een bestaande spouwmuur waarvan het buitenspouwblad wordt afgebroken. Indien de toestand van de bestaande multiplex het toelaat, kan de nieuwe multiplexplaat op de bestaande geplaatst worden.

Terug naar boven.

3.1.2. Overgang plat dak - gevel

Het detail werd getekend voor een bestaande spouwmuur waarvan het buitenspouwblad wordt afgebroken. Een waterkering wordt veiligheidshalve geplaatst.

Terug naar boven.

4. Raamaansluiting

4.1. Algemeen

4.1.1. Nieuw, bovenaansluiting

Het detail werd getekend voor een bestaande spouwmuur waarvan het buitenspouwblad wordt afgebroken. De waterkering heeft vooral zijn doel tijdens de constructiefase en dient in eindfase als extra veiligheid. Bij toepassen van dit principe bij een massieve muur of een spouwmuur met behoud van het buitenspouwblad, dient de slag weggeslepen te worden om tot een analoge situatie als geschetst te komen. Vanuit thermisch oogpunt wordt het raam idealiter ongeveer in het midden van de nieuw geplaatste isolatie gepositioneerd. Probeer in elk geval maximaal overlap van de isolatie met het raamkader te bekomen. Bij de deuren is een stalen kader voorzien om de aansluiting op de dorpel te realiseren. Bij de ramen kan dit principe ook toegepast worden.

Terug naar boven.

4.1.2. Nieuw, onderaansluiting

Het detail werd getekend voor een bestaande spouwmuur waarvan het buitenspouwblad wordt afgebroken. Bij de deuren is een stalen kader voorzien om de aansluiting op de dorpel te realiseren. Bij de ramen kan dit principe, mits enkele aanpassingen, ook toegepast worden. In de situatie met volledige pan onder het raam, wordt het kleinere stuk pan onder de dorpel bij voorkeur bevestigd door verlijming. In de situatie met verzaagde pan onder het raam, wordt in de verzaagde pan een gat geboord met behulp van een steenboor diameter 6mm. De pan wordt vervolgens vastgezet met een inox schroef met EPDM-ring (4,5 * 60 mm) en een zijdelingse panhaak.

Terug naar boven.

4.1.3. Nieuw, zijaansluiting

Het detail werd getekend voor een bestaande spouwmuur waarvan het buitenspouwblad wordt afgebroken. Bij toepassen van dit principe bij een massieve muur of een spouwmuur met behoud van het buitenspouwblad, dient de slag weggeslepen te worden om tot een analoge situatie als geschetst te komen. Vanuit thermisch oogpunt wordt het raam idealiter ongeveer in het midden van de nieuw geplaatste isolatie gepositioneerd. Probeer in elk geval maximaal overlap van de isolatie met het raamkader te bekomen. Bij de deuren is een stalen kader voorzien om de aansluiting op de dorpel te realiseren. Bij de ramen kan dit principe ook toegepast worden.

Terug naar boven.

4.2. Massieve muur

4.2.1. Behoud, bovenaansluiting

Scherm het te behouden schrijnwerk voldoende af tijdens de afbraakwerken. De waterkering heeft vooral zijn doel tijdens de constructiefase en dient in eindfase als extra veiligheid. 

De situatie werd getekend met een verzaagde pan boven het raam. Voor het principe van een volledige pan zie detail 3411.

Bij de deuren is een stalen kader voorzien om de aansluiting op de dorpel te realiseren. Bij de ramen kan dit principe ook toegepast worden.

Terug naar boven.

4.2.2. Behoud, onderaansluiting

Scherm het te behouden schrijnwerk voldoende af tijdens de afbraakwerken.

De situatie werd getekend met een verzaagde pan onder het raam. Voor het principe van een volledige pan zie detail 3412.

Bij de deuren is een stalen kader voorzien om de aansluiting op de dorpel te realiseren. Bij de ramen kan dit principe, mits enkele aanpassingen, ook toegepast worden.

Het bestaande raam steunt niet op de dorpel. Dit is in overeenstemming met de aanbevelingen van de STS 52 art. 6.2.3.1 (2005) en de TV 188 (1993). Indien het raam toch op de bestaande dorpel zou steunen, dienen maatregelen genomen om de stabiliteit van het raam niet in gedrang te brengen.

Terug naar boven.

4.2.3. Behoud, zijaansluiting

Scherm het te behouden schrijnwerk voldoende af tijdens de afbraakwerken. Bij de deuren is een stalen kader voorzien om de aansluiting op de dorpel te realiseren. Bij de ramen kan dit principe ook toegepast worden.

Terug naar boven.

4.3. Massieve muur, na afbraak gevelafwerking spouwmuur

4.3.1. Behoud, bovenaansluiting

Scherm het te behouden schrijnwerk voldoende af tijdens de afbraakwerken. De waterkering heeft vooral zijn doel tijdens de constructiefase en dient in eindfase als extra veiligheid. De situatie werd getekend met een verzaagde pan boven het raam. Voor het principe van een volledige pan zie detail 3411. Bij de deuren is een stalen kader voorzien om de aansluiting op de dorpel te realiseren. Bij de ramen kan dit principe ook toegepast worden.

Terug naar boven.

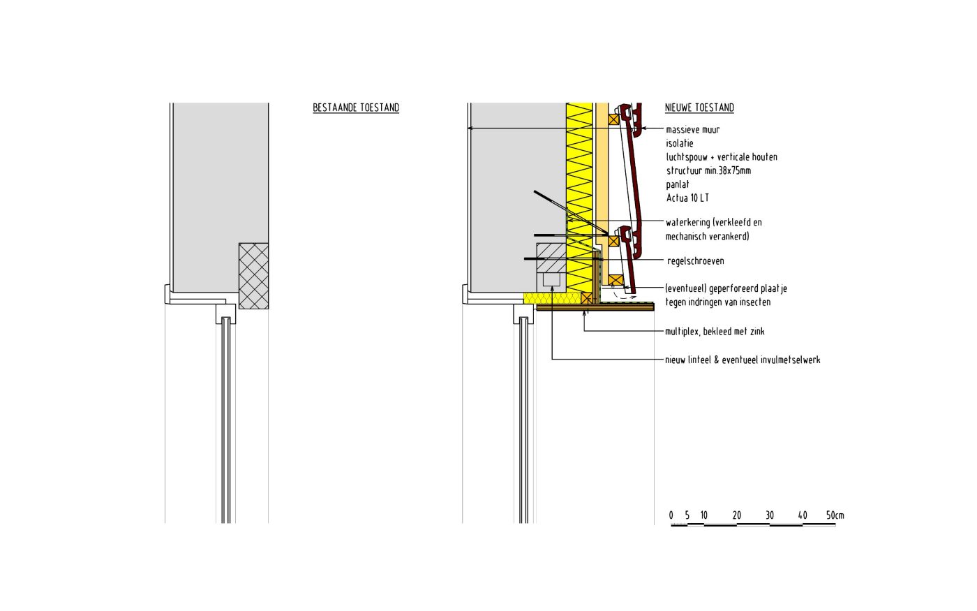
4.3.2. Behoud, onderaansluiting

Scherm het te behouden schrijnwerk voldoende af tijdens de afbraakwerken. De situatie werd getekend met een verzaagde pan onder het raam. Voor het principe van een volledige pan zie detail 3412. Bij de deuren is een stalen kader voorzien om de aansluiting op de dorpel te realiseren. Bij de ramen, mits enkele aanpassingen, kan dit principe ook toegepast worden.

Het bestaande raam steunt niet op de dorpel. Dit is in overeenstemming met de aanbevelingen van de STS 52 art. 6.2.3.1 (2005) en de TV 188 (1993). Indien het raam toch op de bestaande dorpel zou steunen, dienen maatregelen genomen om de stabiliteit van het raam niet in gedrang te brengen.

Terug naar boven.

4.3.3. Behoud, zijaansluiting

Scherm het te behouden schrijnwerk voldoende af tijdens de afbraakwerken. Bij de deuren is een stalen kader voorzien om de aansluiting op de dorpel te realiseren. Bij de ramen kan dit principe ook toegepast worden.

Terug naar boven.

4.4. Spouwmuur

4.4.1. Behoud, bovenaansluiting

Scherm het te behouden schrijnwerk voldoende af tijdens de afbraak-werken. De waterkering heeft vooral zijn doel tijdens de constructiefase en dient in eindfase als extra veiligheid. De situatie werd getekend met een verzaagde pan boven het raam. Voor het principe van een volledige pan zie detail 3411.

Bij grotere overspanningen moet de stabiliteit van het linteel nagegaan worden en indien nodig een L-ijzer of console met tussensteunpunten geplaatst worden. Bij de deuren is een stalen kader voorzien om de aansluiting op de dorpel te realiseren. Bij de ramen kan dit principe ook toegepast worden. Volgens recent onderzoek van KU Leuven betreffende het al dan niet noodzakelijk zijn van het navullen van de spouw (<50 mm) in geval van een buitenisolatiesysteem is gebleken dat de spouw ongeïsoleerd mag blijven op voorwaarde dat alle openingen gedicht werden zodat luchtstromingen in deze spouw vermeden worden.

Terug naar boven.

4.4.2. Behoud, onderaansluiting

Scherm het te behouden schrijnwerk voldoende af tijdens de afbraak-werken. De situatie werd getekend met een verzaagde pan onder het raam. Voor het principe van een volledige pan zie detail 3412. Bij de deuren is een stalen kader voorzien om de aansluiting op de dorpel te realiseren. Bij de ramen kan dit principe, mits enkele aanpassingen, ook toegepast worden. Het bestaande raam steunt niet op de dorpel. Dit is in overeenstemming met de aanbevelingen van de STS 52 art. 6.2.3.1 (2005) en de TV 188 (1993).

Indien het raam toch op de bestaande dorpel zou steunen, dienen maatregelen genomen om de stabiliteit van het raam niet in gedrang te brengen. Volgens recent onderzoek van KU Leuven betreffende het al dan niet noodzakelijk zijn van het navullen van de spouw (<50 mm) in geval van een buitenisolatiesysteem is gebleken dat de spouw ongeïsoleerd mag blijven op voorwaarde dat alle openingen gedicht werden zodat luchtstromingen in deze spouw vermeden worden.

Terug naar boven.

4.4.3. Behoud, zijaansluiting

Scherm het te behouden schrijnwerk voldoende af tijdens de afbraakwerken. Bij de deuren is een stalen kader voorzien om de aansluiting op de dorpel te realiseren. Bij de ramen kan dit principe ook toegepast worden. Volgens recent onderzoek van KU Leuven betreffende het al dan niet noodzakelijk zijn van het navullen van de spouw (<50 mm) in geval van een buitenisolatiesysteem is gebleken dat de spouw ongeïsoleerd mag blijven op voorwaarde dat alle openingen gedicht werden zodat luchtstromingen in deze spouw vermeden worden.

Terug naar boven.

5. Deuraansluiting

5.1. Algemeen

5.1.1. Nieuw, onderaansluiting

Het detail werd getekend voor een bestaande spouwmuur waarvan het buitenspouwblad wordt afgebroken. Hier wordt een oplossing voorgesteld met een geperforeerd rooster. Dit heeft wat meer vrijheid naar het onderste afwerkingsniveau van de gevelbekleding. Andere oplossingen zijn natuurlijk ook mogelijk: een plintsteen onderaan, de dorpel laten zitten of vervangen door een dorpel met dezelfde breedte en met een gevelretour naar de dorpel afwerken. Deze laatste oplossing zal het meest economisch zijn.

Zie detail zijaansluiting: vanuit thermisch oogpunt wordt het raam idealiter ongeveer in het midden van de nieuw geplaatste isolatie gepositioneerd. Probeer in elk geval maximale overlap van de isolatie met het raamkader te bekomen.

Dit principe kan ook toegepast worden bij schuiframen en alle ramen die tot op de nulpas komen.

Terug naar boven.

5.2. Massieve muur

5.2.1. Behoud, onderaansluiting

Scherm het te behouden schrijnwerk voldoende af tijdens de afbraakwerken. Hier wordt een oplossing voorgesteld met een geperforeerd rooster. Dit heeft wat meer vrijheid naar het onderste afwerkingsniveau van de gevelbekleding. Andere oplossingen zijn natuurlijk ook mogelijk: een plintsteen onderaan, de dorpel laten zitten of vervangen door een dorpel met dezelfde breedte en met een gevelretour naar de dorpel afwerken. Deze laatste oplossing zal het meest economisch zijn.

Dit principe kan ook toegepast worden bij schuiframen en alle ramen die tot op de nulpas komen.

Terug naar boven.

5.3. Massieve muur, na afbraak gevelafwerking spouwmuur

5.3.1. Behoud, onderaansluiting

Scherm het te behouden schrijnwerk voldoende af tijdens de afbraakwerken. Hier wordt een oplossing voorgesteld met een geperforeerd rooster. Dit heeft wat meer vrijheid naar het onderste afwerkingsniveau van de gevelbekleding. Andere oplossingen zijn natuurlijk ook mogelijk: een plintsteen onderaan, de dorpel laten zitten of vervangen door een dorpel met dezelfde breedte en met een gevelretour naar de dorpel afwerken. Deze laatste oplossing zal het meest economisch zijn.

Dit principe kan ook toegepast worden bij schuiframen en alle ramen die tot op de nulpas komen.

Terug naar boven.

5.4. Spouwmuur

5.4.1. Behoud, onderaansluiting

Scherm het te behouden schrijnwerk voldoende af tijdens de afbraakwerken. Hier wordt een oplossing voorgesteld met een geperforeerd rooster. Dit heeft wat meer vrijheid naar het onderste afwerkingsniveau van de gevelbekleding. Andere oplossingen zijn natuurlijk ook mogelijk: een plintsteen onderaan, de dorpel laten zitten of vervangen door een dorpel met dezelfde breedte en met een gevelretour naar de dorpel afwerken.

Deze laatste oplossing zal het meest economisch zijn. Dit principe kan ook toegepast worden bij schuiframen en alle ramen die tot op de nulpas komen. Volgens recent onderzoek van KU Leuven betreffende het al dan niet noodzakelijk zijn van het navullen van de spouw (<50 mm) in geval van een buitenisolatiesysteem is gebleken dat de spouw ongeïsoleerd mag blijven op voorwaarde dat alle openingen gedicht werden zodat luchtstromingen in deze spouw vermeden worden.

Terug naar boven.

6. Hoekaansluiting

6.1. Algemeen

6.1.1. Binnenhoek

Het detail werd getekend voor een bestaande spouwmuur waarvan het buitenspouwblad wordt afgebroken. Indien voor het plaatsen van het zinken profiel in de binnenhoek ophangneuzen in de weg zitten, worden deze door de plaatser verwijderd. Indien een pan door het verzagen niet meer met een zijdelingse panhaak kan bevestigd worden, is het aanbevolen deze pan twee maal te schroeven met een inox schroef met EPDM-ring (lengte schroef in functie van het type pan. Voor de Actua is dat 60 mm.)

Terug naar boven.

6.1.2. Buitenhoek

Het detail werd getekend voor een bestaande spouwmuur waarvan het buitenspouwblad wordt afgebroken. Indien een pan wordt gekozen waarvoor geen hoekstuk beschikbaar is, kan gewerkt worden met een gevelpan of kan een hoekprofiel geplooid worden naar wens van de bouwheer of de architect in samenspraak met de dakdekker.

Terug naar boven.

Nog een vraag?

Geen antwoord gevonden op wat u zocht?
Stuur ons uw vraag door.

Producten

Ons uitgebreide gamma aan bouwmaterialen en -oplossingen bevat ongetwijfeld het juiste product voor uw realisatie. Duik in één van onderstaande productzoekers om uw gewenste bouwmateriaal te vinden.

Downloads

Op zoek naar een bepaalde brochure, technische fiche of advies over onze producten?

Documentatiecenter

Showrooms

Kom langs in een van onze showrooms, ontdek er onze producten en neem een gratis staal mee naar huis van uw favoriete product. Neem daarnaast ook deel aan onze tombola en maak kans op een cashback van 600€.

Jobs / vacatures

Ook een Wienerberger worden? Ontdek onze openstaande vacatures en bouw aan je carrière.